CUISY (77)
Description
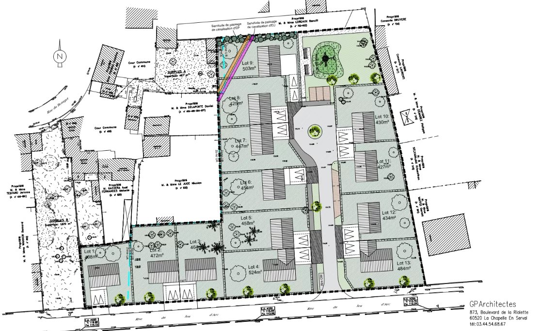
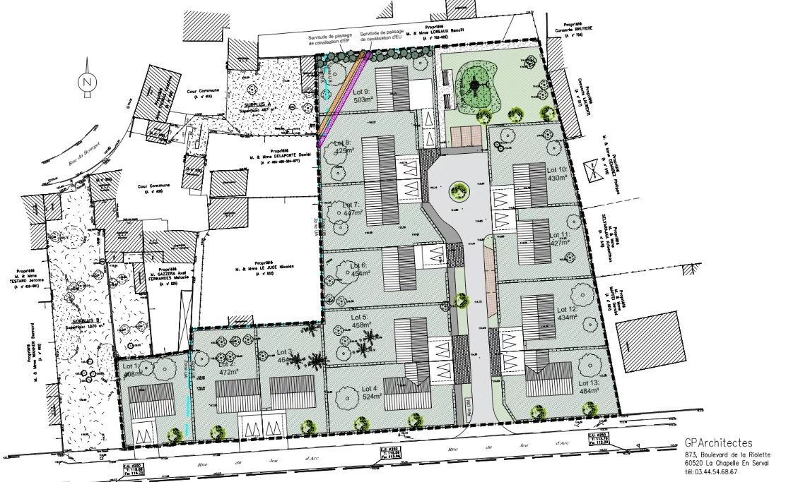
CUISY (77)
Secteur calme et recherché proche ROISSY CDG.
13 Terrains à bâtir viabilisés de 408 m² à 524 m².
Prix de 141 000€ à 149 000€.
A seulement 20mn de ROISSY CDG/TGV.
Accès rapide N2 Francilienne – A1/A3.
Détails
-
Référence du bien:CUISY07
-
Surface terrain:447 m²
-
Prix (€):141.000 €
-
Statut du bien:


