LUZARCHES (95)
Description
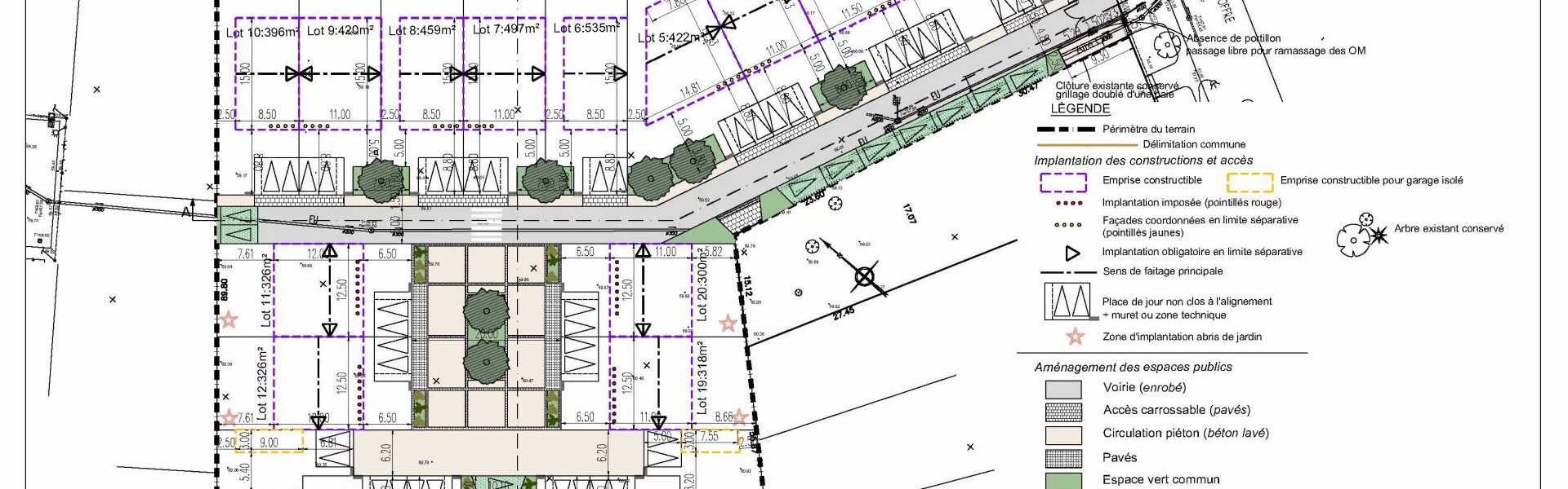
Village du Parc Naturel Régional Oise-Pays de France.
20 mn ROISSY CDG/TGV – Accès D316 – Francilienne.
20 lots à bâtir viabilisés de 278 m² à 535 m².
Prix de 150 000 € à 190 000 €
Gare et supermarché à pieds.
FRAIS DE NOTAIRE REDUITS 3%.
Détails
-
Référence du bien:LUZFERME02
-
Surface terrain:402 m²
-
Prix (€):173.000 €
-
Statut du bien:

