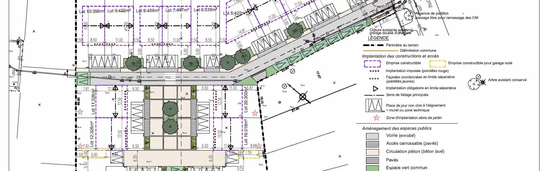
LUZARCHES (95)
Description
Village du Parc Naturel Régional Oise-Pays de France.
20 mn ROISSY CDG/TGV – Accès D316 – Francilienne.
20 lots à bâtir viabilisés de 278 m² à 535 m².
Prix de 150 000 € à 190 000 €
Gare et supermarché à pieds.
FRAIS DE NOTAIRE REDUITS 3%.
Extrait du règlement :
VIABILITES : EAU – EDF – Télécom – GAZ – Assainissement Eaux Usées
HAUTEUR : R+Combles ou R+1
TOITURE : 35° / 45°
CHEMINEE : Briques rouges, pierres ou enduits ton pierre
TUILES : Plates en terre cuite 60 à 80/m², sans côte verticale apparente brun rouge, ou ardoise naturelle
ENDUITS : Lissé, gratté ou taloché
SURFACE DE PLANCHER : 250 m² / lot
SECTEUR ABF NON
Détails
-
Référence du bien:LUZFERME16
-
Surface terrain:278 m²
-
Prix (€):150.000 €
-
Statut du bien:


