NEUILLY EN THELLE (60)
Description
Nord BEAUMONT SUR OISE (95)
Gare à CHAMBLY (60) , Accès D1001 – 5mn à pieds du collège
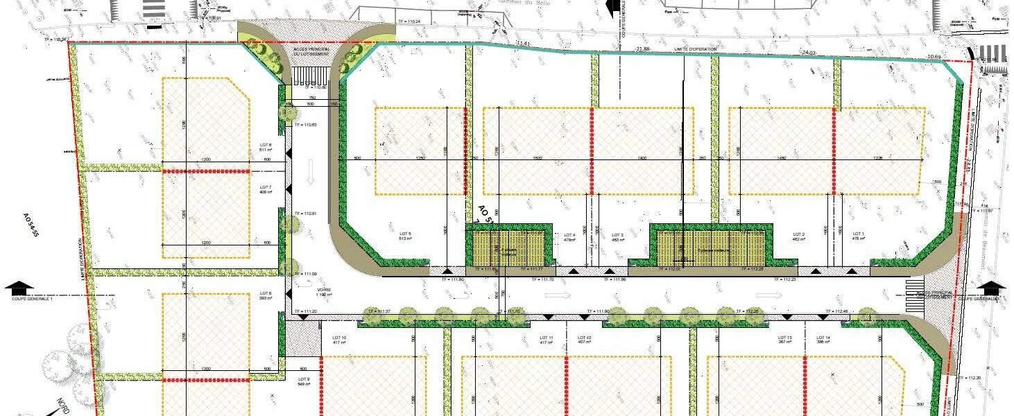
14 terrains à bâtir viabilisés de 367 m² à 549 m².
Prix de 120 000 € TTC à 146 400 € TTC.
FRAIS DE NOTAIRE REDUITS 3%
Extrait du règlement :
HAUTEUR : 5,50 m / 6 m à l’égout du toit minimum – R+1
TOITURE : 35° à 50°
TUILES :
– Plates – 27m² au minimum sans côtes verticales apparentes de couleur brun-rouge vieilli
– Ardoise naturelle ou synthétique en pose droite
– zinc naturel ou prépatiné
SECTEUR ABF : NON
Détails
-
Référence du bien:NEUILLYMARCEL12
-
Surface terrain:407 m²
-
Prix (€):121.800 €
-
Statut du bien:



