THIERS-SUR-THEVE (60)
Description
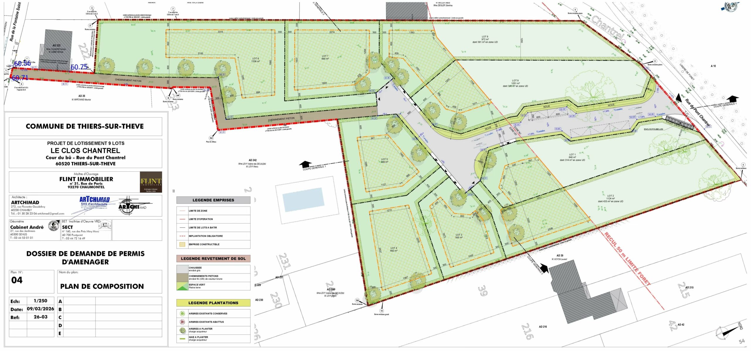
Sur la commune de THIERS-SUR-THEVE (60), 9 terrains à bâtir viabilisés de 500 m² à 1336 m².
– A 20′ ROISSY CDG/TGV
– Sud SENLIS/CHANTILLY
– Proche A1
– Proche SURVILLIERS (95)
– Permis d’aménager en cours d’obtention
Nichée au cœur de l’Oise, Thiers-sur-Thève est une commune pleine de charme où nature et tranquillité se rencontrent. À proximité des grands axes et entourée de paysages verdoyants, elle offre un cadre de vie paisible tout en restant proche des commodités. Entre patrimoine, convivialité et douceur de vivre, Thiers-sur-Thève séduit ceux qui recherchent authenticité et qualité de vie.
Extrait du règlement :
VIABILITES : EAU – EDF – TELECOM – Assainissement Eaux Usées
HAUTEUR : R + Combles
CHEMINEE : Souche pierres ou briques rouges ou enduit ton pierre
TOITURE : 35°/55°
TUILES : Plates 27U/m² minimum
ENDUIT : lisse, gratté ou taloché
SURFACE DE PLANCHER : 250 m² / 350 m² par lot
Détails
-
Référence du bien:THIERS03
-
Surface terrain:500 m²
-
Prix (€):140.000 €
-
Statut du bien:


