136.000

Description

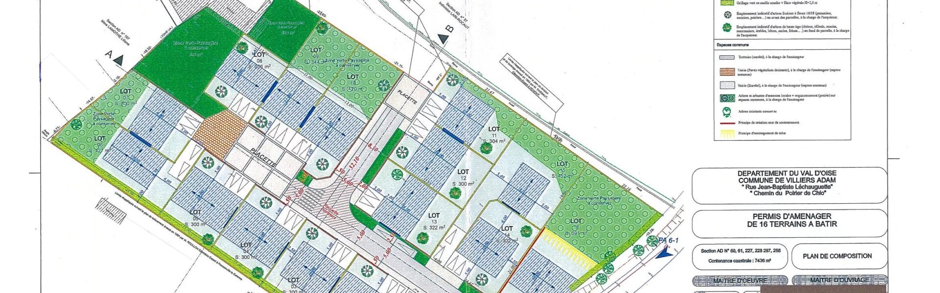
Lotissement de 16 terrains à bâtir situé entre les forêts de l’Isle-Adam au nord et de Montmorency au sud, à une vingtaine de kilomètres au nord-ouest de Paris.

Accès francilienne rapide.
Entre Pontoise et L’Isle Adam.

Ce village est le parfait compromis offrant la tranquillité de la campagne tout en restant proche de la ville et de ses services.

Proche gares MERIEL – VALMONDOIS et MERY SUR OISE
Permis d’aménager n° PA 095 678 20 0 5002

VIABILITES : EAU – EDF – TELECOM et Assainissement eaux usées

TOITURE : entre 35° et 45°

TUILES : plates 60u/m² rouge-brun

ENDUIT : gratté

PIGNON : maxi 7,50 m

HAUTEUR : façade mini 3,30 m / façade plus haute en géométral que la hauteur de toiture

SECTEUR ABF : OUI

Détails

  • Référence du bien:
    VILLIERSADAM2
  • Surface terrain:
    300 m²
  • Prix (€):
    136.000
  • Statut du bien:

Google Nearby Places