VILLIERS ADAM (95)
Description
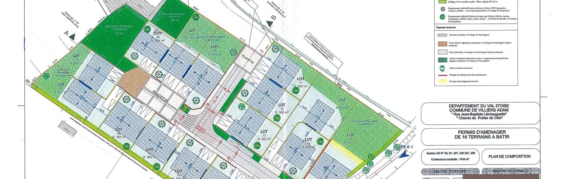
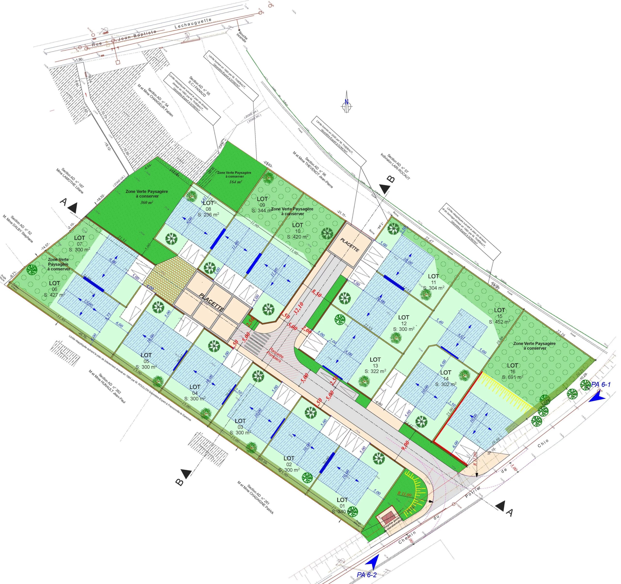
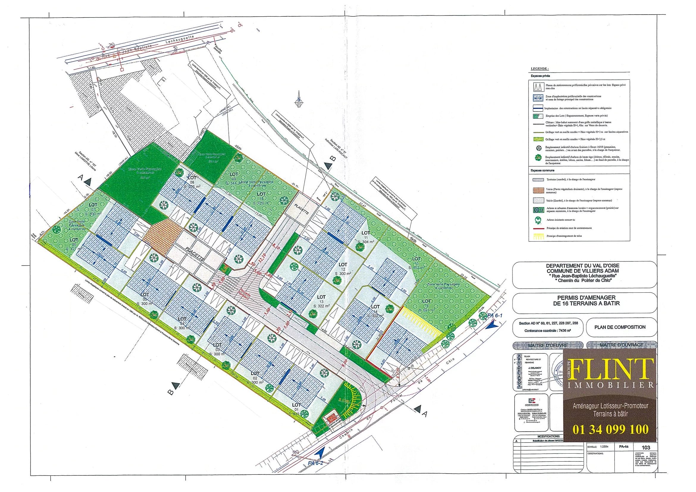
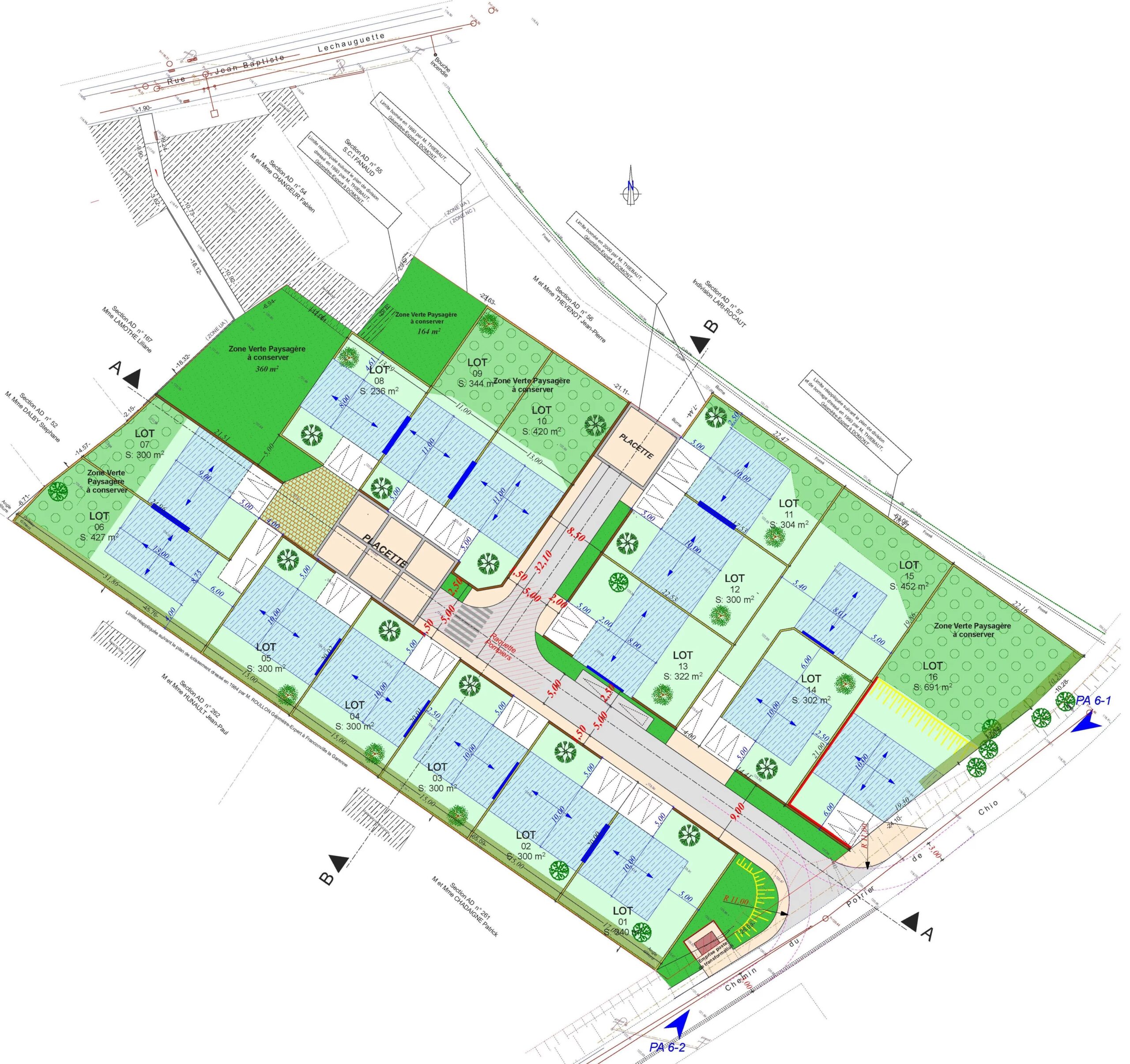
Lotissement de 16 terrains à bâtir situé entre les forêts de l’Isle-Adam au nord et de Montmorency au sud, à une vingtaine de kilomètres au nord-ouest de Paris.
Accès francilienne rapide.
Entre Pontoise et L’Isle Adam.
Ce village est le parfait compromis offrant la tranquillité de la campagne tout en restant proche de la ville et de ses services.
Proche gares MERIEL – VALMONDOIS et MERY SUR OISE
ermis d’aménager n° PA 095 678 20 0 5002
VIABILITES : EAU – EDF – TELECOM et Assainissement eaux usées
TOITURE : entre 35° et 45°
TUILES : plates 60u/m² rouge-brun
ENDUIT : gratté
PIGNON : maxi 7,50 m
HAUTEUR : façade mini 3,30 m / façade plus haute en géométral que la hauteur de toiture
SECTEUR ABF : OUI
Détails
-
Référence du bien:VILLIERSADAM16
-
Surface terrain:691 m²
-
Prix (€):175.000 €
-
Statut du bien:




